Property Image
Property Image
Property Image
Property Image
Property Image
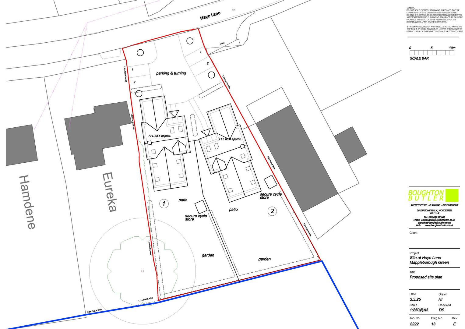
floorplan

3 Beds - Plot - Sold STC Haye Lane, Mappleborough Green - Guide Price £250,000

  • 3
  • 3
  • 1

Plot only for sale. Register your interest with us!<br/>Prime Development Opportunity - Plot of Land with Full Planning Permission.<br/><br/>Discover the perfect chance to build your dream home or investment project on this countryside, 0.2 acre plot with undulating countryside views. Complete with Full Planning Permission for a Three Bedroom, Three en-suite Detached Home standing at just over 1,800 sq.ft behind private gates with manicured, landscaped gardens.<br/><br/>Situated in the desirable area of Mappleborough Green, this plot offers a rare chance to create a bespoke property in a sought-after location.<br/><br/>Planning ref: 24/03092/FUL

Key Features

  • Countryside plot

  • Land

  • Rural

  • Planning Permission granted

  • An approximate 0.2 acre plot

  • Plans for luxury home just under 2,000 sq.ft

Plot only for sale. Register your interest with us!
Prime Development Opportunity - Plot of Land with Full Planning Permission.

Discover the perfect chance to build your dream home or investment project on this countryside, 0.2 acre plot with undulating countryside views. Complete with Full Planning Permission for a Three Bedroom, Three en-suite Detached Home standing at just over 1,800 sq.ft behind private gates with manicured, landscaped gardens.

Situated in the desirable area of Mappleborough Green, this plot offers a rare chance to create a bespoke property in a sought-after location.

Planning ref: 24/03092/FUL


Location

Looking to buy ?

Sign up to receive property updates

Register